Västraby 1058A, Broby

Upplåtelseform: Äganderätt
Antal rum: 3 (varav 2 sovrum)
Utgångspris: 3 900 000 kr
Boarea: 153 m²
Fastighetsavgift: 10 074 kr/år
Objektstyp: Gård

Fakta

Hästanläggning med ridhus, stall med 10 boxplatser, skrittmaskin och bostadslägenhet i Skåne

I natursköna Västraby i Östra Göinge kommun i Skåne, finns denna hästanläggning på 2 ha med ridhus integrerat med ett rymligt stall med plats för 10 hästar, skrittmaskin och en trevlig lägenhet på ca 153 kvm.

Anläggningen uppfördes 2003 och har ett lantligt och rofyllt läge i Västraby utanför Broby, endast 2,5 km från centrum.

Möjlighet finna att hyra ytterligare betesmarker i direkt anslutning till anläggningen.

Välkommen på visning!
Beskrivning
Ovanpå stallet finns en lägenhet om uppskattningsvis 153 kvm. Lägenheten har 2 rejäla sovrum, ett helkaklat badrum och ett fullt utrustat kök i öppen planlösning med vardagsrummet.
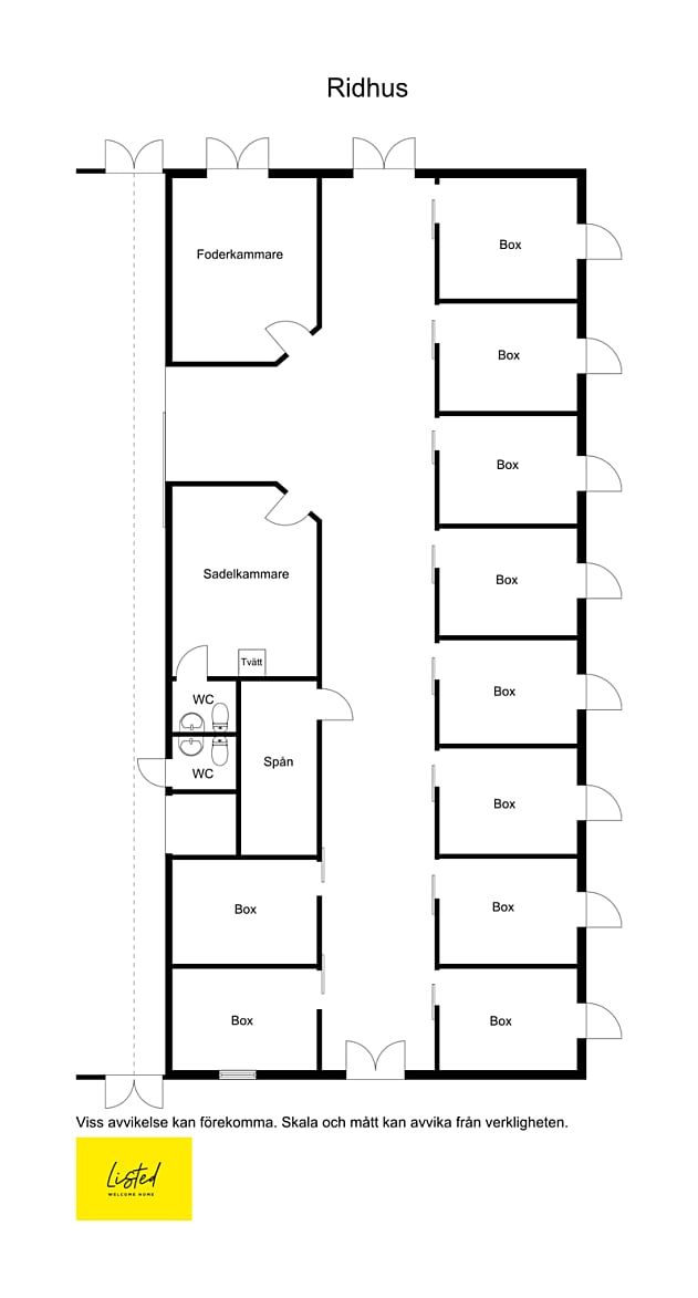
Ridhus och stall
Fastigheten inkluderar en ridbana om 70 x 45 meter med grusunderlag – perfekt för varierad träning utomhus – samt ett stort ridhus på 66 x 24 meter med sandunderlag, idealiskt för både vardagsridning och träning året om. Här finns även en skrittmaskin.

Stallet är integrerat med ridhuset och mäter 24 x 12 meter. Här finns tio rymliga boxar, sadelkammare, täckes- och höförråd, spolspilta samt en toalett.

Dessutom finns två förrådsutrymmen om vardera 50 kvm samt ytterligare en toalett för ökad bekvämlighet.
Taxeringsuppgift
Taxeringsenhet
120 - Lantbruksenhet, bebyggd
Taxeringsår 2023
Avstyckning pågår.

Värderingsenhet: Betesmark
Taxeringsvärde 95 kkr
Areal 2 ha

Värderingsenhet: Ekonomibyggnad
Byggnadstyp Djurstall för hästar, värdeår 1980-
Taxeringsvärde 431 kkr
Yta 264 m²

Värderingsenhet: Ekonomibyggnad
Byggnadstyp Ridhus
Taxeringsvärde 1 934 kkr
Yta 1320 m²
Förvärvstillstånd
Som köpare kan du behöva söka förvärvstillstånd hos Länsstyrelsen. För mer information, kontakta Länsstyrelsen.
Länk: https://www.lansstyrelsen.se/skane/natur-och-landsbygd/information-till-verksamma-pa-landsbygden/forvarv-av-lantbruksfastigheter.html
Basfakta
  • Typ
    Gård
  • Län
    Skåne
  • Kommun
    Östra Göinge
  • Område
    Västraby
  • Gatuadress
    Västraby 1058A
Energideklaration
  • Saknas
Taxering
  • Fastighetsbeteckning
    Västraby 12:83
  • Rättigheter
    Förmån: OFFICIALSERVITUT 1256-563.1 VATTENTÄKT
  • Taxeringsvärde
    5 076 000 kr
  • Taxeringskod
    120 Lantbruksenhet, bebyggd
  • Pantbrev
    2 st, sammanlagt 4 500 000 kr
Objektsdetaljer
  • Boarea
    153 m²
  • Byggnadsår
    Byggd 2003, inredd 2015
  • Skick
    Normal standard
  • Antal rum
    3 (varav 2 sovrum)
  • Antal våningar
    1
  • Avlopp
    3-kammarbrunn
  • Bekvämligheter
    Fiber, Uteplats
  • Grund
    Betongplatta
  • Byggnadstyp
    1 plan
  • Fasad
    Puts
  • Fönster
    Treglas
  • Parkering
    Bilplats, Garage
  • Uppvärmning
    Jordvärme
  • Stomme
    Betong
  • Tak
    Betongpannor
  • Vatten
    Borrad brunn
  • Övriga utrymmen
    Stall, Uterum, Inredd lägenhet, Ridhus, Täckesförråd, Ridbana, Höförråd, Sadelkammare
  • Ventilation
    Mekanisk frånluft
Finns erforderliga bygglov samt slutbevis/slutbesked för uppförda byggnader?
Ja, Slutbevis hittar jag inte men ska finnas enligt kontrollplanen.
Finns det anmärkningar från sotare, Byggnadsnämnden, Miljöförvaltningen etc. beträffande oljetank, ventilation, eldstäder, rökgångar m.m.?
Nej
Har du observerat defekter eller fel i byggnaden? T. ex. i dränering, isolering, väggar, tak etc.
Nej
Har du uppmärksammat fel i vatten-, avlopp- eller elsystem?
Nej
Finns det egen brunn till fastigheten? Om ja, har mängden vatten varit bristfällig för normal konsumtion eller av dålig kvalitet?
Ja, Nej det är borrad brunn och aldrig brist eller dålig kvalitet.
Har du renoverat eller gjort någon ny-, till- eller ombyggnad? Om ja, ange vad som är gjort och när.
Nej
Har du anlitat fackman för ovan åtgärder?
Nej
Finns det några övriga brister i fastigheten som du har uppmärksammat?
Vet ej
Hur många nycklar finns det till bostaden?
2
Har någon nyckel gått förlorad?
Nej
Finns det Parkslide på fastigheten eller i dess närhet? (Parkslide är en seglivad växt med mycket stark spridningskraft och liknar bambu till utseendet.)
Nej

Karta

Karta som visar bostadens läge

Bilder

Bild från objektet Välkommen
Bild från objektet Välkommen
Bild från objektet Välkommen

Kostnadsfri Värdering

Lämna ditt nummer nedan så ringer vi upp dig.

Integritetspolicy
Bild från objektet Välkommen
Bild från objektet Välkommen
Bild från objektet Välkommen
Bild från objektet Välkommen
Bild från objektet Välkommen
Bild från objektet Välkommen
Bild från objektet Välkommen
Bild från objektet Välkommen
Bild från objektet Välkommen
Bild från objektet Välkommen
Bild från objektet Välkommen
Bild från objektet Välkommen
Bild från objektet Välkommen
Bild från objektet Välkommen
Bild från objektet Välkommen
Bild från objektet Välkommen
Bild från objektet Välkommen
Bild från objektet Välkommen
Bild från objektet Välkommen
Bild från objektet Välkommen
Bild från objektet Välkommen
Bild från objektet Välkommen
Bild från objektet Välkommen
Bild från objektet Välkommen
Bild från objektet Välkommen
Bild från objektet Välkommen
Bild från objektet Välkommen
Bild från objektet Välkommen
Bild från objektet Välkommen

Planritning

Bild från objektet Planritning

Fastighetskarta

Bild från objektet Fastighetskarta

Visningar

Du kommer också få löpande uppdateringar om bud, visningar m.m.

Privat visning

Hos oss är det ägaren som håller i visningen. Finns det ingen visning planerad kan du kontakta ägaren direkt och be om en visning.

Lämna ditt mobilnummer så får du ett sms med ägarens kontaktuppgifter.

Integritetspolicy

Budgivning

Om du behöver hjälp med att lägga ett bud, var god kontakta kundtjänst
Budgivning öppen
Utgångspris
3 900 000 kr
Logga in
Registrera konto
För att lägga ett bud på det här objektet måste du registrera ett användarkonto.
Skapa konto

Kontakt

Porträtt av Gunilla Zaar
Gunilla Zaar
Reg. Fastighetsmäklare
Har du frågor om objektet?
I detta fall är det ägaren som har hand om visningen. Har du frågor om bostaden lämnar du ditt mobilnummer så får du ett sms med ägarens kontaktuppgifter. Du kommer också få löpande uppdateringar om bud, visningar m.m.
Integritetspolicy
Det går även bra att kontakta oss på: